Ce qu'en pense notre agent
Informations et visites avec Célia | 0476/41.90.70 | info@inwee.be
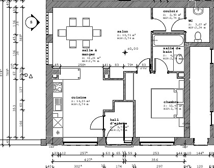
Inwee vous propose un charmant appartement 1 chambre de 71m² sis au rez-de-chaussée dans le recherché village de Belgrade. Entièrement rénové et disposant de beaux espaces de vie (séjour de +-46 m²), il comprend également une cuisine lumineuse et entièrement équipée ouverte sur le séjour. L'appartement se compose comme suit : hall d'entrée, cuisine ouverte sur le séjour, chambre ( +-14m²), salle de bains accessible via la chambre, hall, WC séparé. Possibilité de se garer face à l'appartement sur le trottoir. Situation très recherchée pour sa proximité des grands axes, transports en commun et centre de Namur, mais aussi des commerces et services. Au vu de son volume, cet appartement conviendra particulièrement à une personne seule ou couple. Compteur électrique privatif, décompteurs pour l'eau et le gaz (chauffage/eau chaude), pas de charges communes. Provisions pour charge (eau, gaz) : 190€/mois. PEB : D.   Opportunité rare, à voir sans tarder !
Général
- Catégorie: Appartement
- Nombre de chambre: Oui
- Nombre de salle de bain: Oui
- Surface habitable: 65 m2
- Jardin: Non
- Terrasse: Non
- Garage: Non
- Parking: Non
- Meublé: Non
En quelques chiffres
- surface bâtie: 75 m2
- Nbre de toilette(s): 1
- nombre de sdd: 1
- chambre 1: 14 m2
- Salle de séjour: 46 m2
Équipement de base
- accès handicapés: Oui
- cuisine: Oui
- chauffage (ind/coll): collectif
- ascenseur: Non
- double vitrage: Oui
- chauffage: gaz (chau. centr.)
- type de cuisine: équipée
- sdb: bain
- double vitrage: isol. thermique
Équipements techniques
- châssis: bois
Équipement extérieur
- piscine: Non
Bâtiment
- parking intérieur: Non
- parking extérieur: Oui
- Parking(s) extérieur: 1
Spécificités terrain
- Type d'environnement: central
Raccordements
- électricité: Oui
- télévision par cable: Oui
- gaz: Oui
- câbles téléphoniques: Oui
- eau: Oui
Énergie
- Label PEB: D
- PEB E-SPEC (kwh/m²/an): 292
- PEB code unique: 20200923015007

















