Vidéo du bien
Ce qu'en pense notre agent
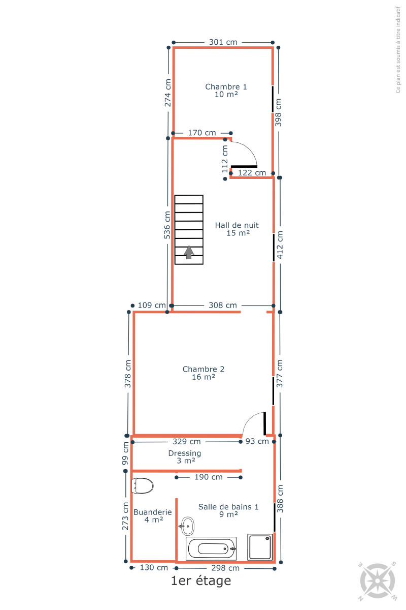
Magnifique habitation coup de coeur en pierre bleue et entièrement rénovée avec goût en 2019-2020 ! Parfaite alliance du cachet de l'ancien et de modernité, elle offre une superficie habitable de 170m² et une superficie totale de 212m² ainsi qu'un jardin non attenant de 3ares 65 (accès aisé via un chemin latéral privé) avec vue dégagée à 180° et parfaitement au calme. Elle se compose d'une cuisine équipée (2020), salle à manger avec poêle à bois tubé, salon cosy avec meuble tv sur mesure, wc séparé et superbe mezzanine en surplomb du salon. Elle se compose également de 3 chambres : une suite parentale comprenant une chambre de 16,10 m² + dressing et salle de bains ( baignoire, douche, lavabo, wc, parquet en teck), une chambre enfant entièrement rénovée de 9,72m², la troisième chambre au 2ème étage est à rénover et comprend un espace chambre de 25,6m², un dressing/bureau de 20,76m² et une salle de bains.Electricité bi-horaire aux normes ! Toiture en bon état. Chauffage entral mazout +/- 20ans. Plancher du 2ème étage isolé. Châssis en PVC avec double vitrage (2012). Garage indépendant + un emplacement de parking. Rénovation professionnelle avec des matériaux de qualité. Situation exceptionnelle en plein coeur du village de Naninne avec accès immédiat aux facilités : gare des trains, N4, E411, bus, écoles/crèches, commerces ! Habitable de suite sans gros budget travaux. POSSIBILITE DE REDUCTION DES DROITS D'ENREGISTREMENT à 6% : RC = 652€ ! Ne tardez pas !
Plus d'infos, documents et vidéo sur www.inwee.be.
Général
- Catégorie: Maison
- Nombre de chambre: 3
- Nombre de salle de bain: 2
- Surface habitable: 170 m2
- Jardin: Oui
- Surface du jardin: 62 m2
- Garage: Oui
- Parking: Oui
En quelques chiffres
- largeur front de rue: 16.36 m
- surface bâtie: 78 m2
- Nbre de dressing(s): 1
- chambre 1: 9.72 m2
- chambre 2: 16.1 m2
- chambre 3: 25.86 m2
- largeur de façade: 15.73 m
- Garage: 19.05 m2
- Salle à manger: 20.69 m2
- Cuisine: 12.72 m2
- Salle de bain 1: 9.26 m2
- profondeur terrain: 12 m
- surface nette: 170.36 m2
- surface brute: 212.59 m2
- Hall d'entrée: 3.76 m2
- bureau: 20.76 m2
- Caves: 23 m2
- Dressing: 3.2 m2
- buanderie: 3.54 m2
- Nbre de pièce(s): 14
Équipement de base
- cuisine: Oui
- double vitrage: Oui
- chauffage: mazout (chauf. centr.)
- type de cuisine: équipée
- sdb: douche et bain
Équipements techniques
- fenêtres: Oui
- centrale tél.: Oui
- châssis: pvc
- type de éclairage: spots encastrés
- type de éclairage: spots
Bâtiment
- nombre de garage: 1
- Année de rénovation: 2020
- Parking(s) intérieur: 1
- type de façade avant: pierre naturelle
Spécificités terrain
- Type d'environnement: campagne
- Exposition de la façade avant: sud-ouest
Raccordements
- égouts: Oui
- électricité: Oui
- télévision par cable: Oui
- citerne à mazout: Oui
- câbles téléphoniques: Oui
Type de matériau & évaluation
- chambre 1 (revêtement de sol): parquet
- chambre 3 (revêtement de sol): plancher
- type de revêtement de sol: parquet
- chambre 2 (revêtement de sol): parquet
Énergie
- Label PEB: D
- PEB E-SPEC (kwh/m²/an): 325
- E total: 325
- PEB code unique: 20140125006191
Cadastre
- Revenu cadastral (€): 652
Divers
- salle à manger: Oui
- buanderie: Oui
- bureau: Oui
- lave-vaisselle: Oui
- hall d'entrée: Oui
- marque de lave-vaisselle: de la marque AEG
- téléphone: Oui
- Cave: Oui





































