Ce qu'en pense notre agent
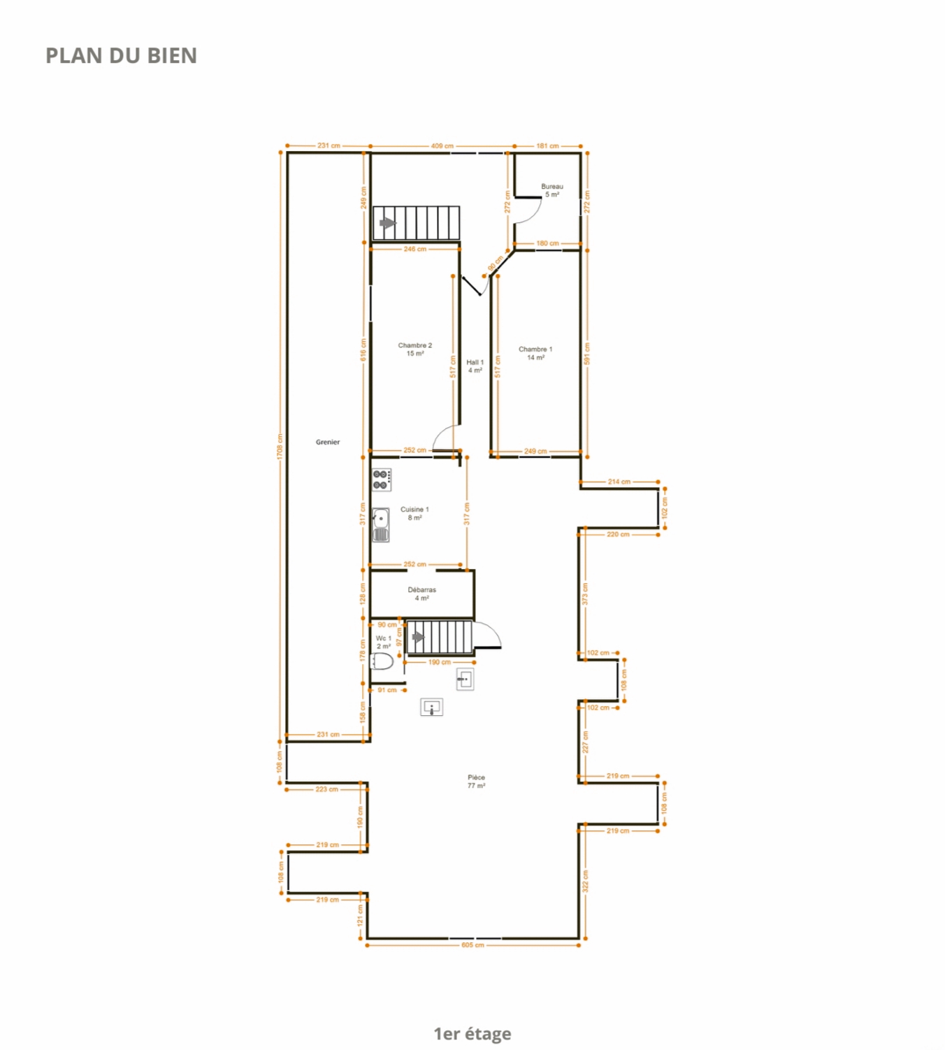
Superbe vue de surplomb et volumes surprenants pour cette villa de 493m², dont 367m² habitables sise sur un terrain de 66ares96. Niveau de confort et d'entretien irréprochables ! Cette habitation dispose de tous les atouts : 40 panneaux photovoltaïques, chauffage central mazout (rez) + pompes à chaleur (étage), piscine chauffée avec nage à contre-courant, box à cheval avec eau+électricité, excellent niveau d'isolation (PEB : B), terrasse de 38,5m², jardin parfaitement ensoleillé. Au rez-de-chaussée (224m²), elle se compose d'un séjour lumineux de 75m² avec coin détente, salon avec cassette à bois, sàm et accès terrasse. Cuisine américaine et ouverte hyper-équipée ilôt central avec taque au gaz et hotte, four, four vapeur, machine à café, micro-onde, évier sous encastré, frigo américain). 4 chambres de 14,5m², 3 halls d'entrée distincts, salle de bains (baignoire, douche, lavabo,WC) et un WC séparé. A l'étage (143m²) : Une pièce polyvalente de 77,5m² (profession libérale, séjour, salle de sport, suite parentale ou autre), 2 chambres, un bureau, un espace sanitaire (lavabo +WC) ainsi qu'une cuisine semi-équipée ouverte. Le bien dispose également de caves, garage, nombreux parkings extérieurs et grenier. Cadre de vie idéal et calme, dans une rue à sens unique. A deux pas des 7 Meuses, gare des trains proche. Etat d'entretien irréprochable. Bien exceptionnel, à visiter sans tarder !
Général
- Catégorie: Maison
- Nombre de chambre: 6
- Nombre de salle de bain: Oui
- Surface habitable: 367 m2
- Jardin: Oui
- Terrasse: Oui
- Garage: Oui
- Parking: Oui
- Meublé: Non
En quelques chiffres
- Nbre de toilette(s): 2
- nombre de sdd: 1
- chambre 1: 15 m2
- chambre 2: 15 m2
- chambre 3: 14.5 m2
- chambre 4: 14.5 m2
- chambre 5: 14.5 m2
- largeur de façade: 11.3 m
- Salle de séjour: 75 m2
- Cuisine: 22.5 m2
- orientation de la terrasse 1: nord-ouest
Équipement de base
- cuisine: Oui
- double vitrage: Oui
- chauffage: pompe à chaleur
- type de cuisine: amer. super-équipée
- sdb: douche et bain assis
- parlophone: Oui
- Videophone: Oui
Équipements techniques
- air conditionné: Oui
- châssis: bois
Équipement extérieur
- piscine: Oui
- Citerne d'eau: Oui
Bâtiment
- Année de construction: 1996
- nombre de garage: 1
- espace ventilé: Oui
- Année de rénovation: 2019
- Parking(s) extérieur: 6
- type de toit: en pente
Caractéristiques Principales
- surface de terrasse 1: 38.5 m2
Spécificités terrain
- orientation du bâtiment: sud-ouest
- Type d'environnement: boisé
Énergie
- Label PEB: B
- PEB E-SPEC (kwh/m²/an): 153
- PEB code unique: 20190910016125
Cadastre
- Revenu cadastral (€): 1729
Divers
- buanderie: Oui
- bureau: Oui
- Grenier: Oui
- Cave: Oui































